Orford
Construction neuve
Orford, Qc.
2024
photographieintérieure.co
Type
Lieu
Année
Photos
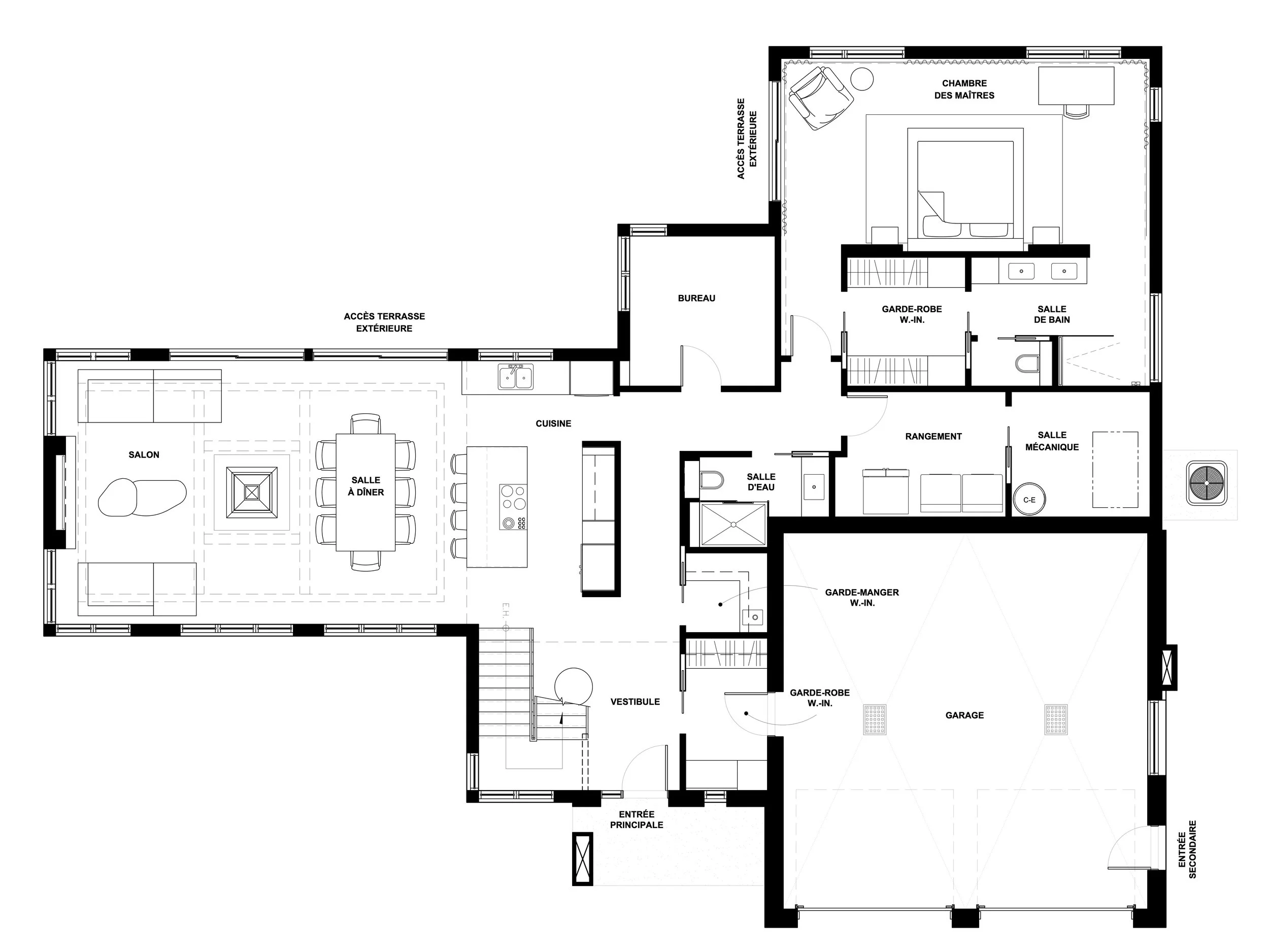
Ce projet prend place sur un terrain en retrait, enveloppé par un magnifique boisé s’intégrant pleinement à l’expérience des lieux. Notre équipe a accompagné les clients afin de peaufiner l’ergonomie intérieur des plans et de créer des espaces uniques d’inspiration scandinave et contemporaine. Les contrastes, traités avec subtilité à travers les volumes et les matières, instaurent une ambiance douce et apaisante. Dès l’entrée, le volume central de la résidence — la cuisine — se distingue par un abaissement de plafond habillé de bois, venant structurer l’aire ouverte et définir ainsi les différentes zones de vie. À travers la maison, plusieurs volumes architecturaux ont été soigneusement pensés afin d’y intégrer rangement, mobilier, éclairage et commodités pour créer un ensemble à la fois épuré et hautement fonctionnel, parfaitement adapté au quotidien des occupants.

